Aktuell

Wir stellen ein!!!

 

 

  • Vorarbeiter im Hochbau (m/w/d)
  • Hochbaufacharbeiter (m/w/d)
  • Vorarbeiter im Straßen- und Tiefbau (m/w/d)
  • Straßen- und Tiefbaufacharbeiter (m/w/d)
  • Baumaschinenführer (m/w/d)

 

Wir bieten:

  • über …

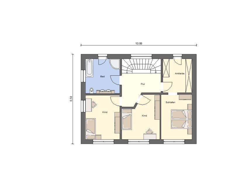
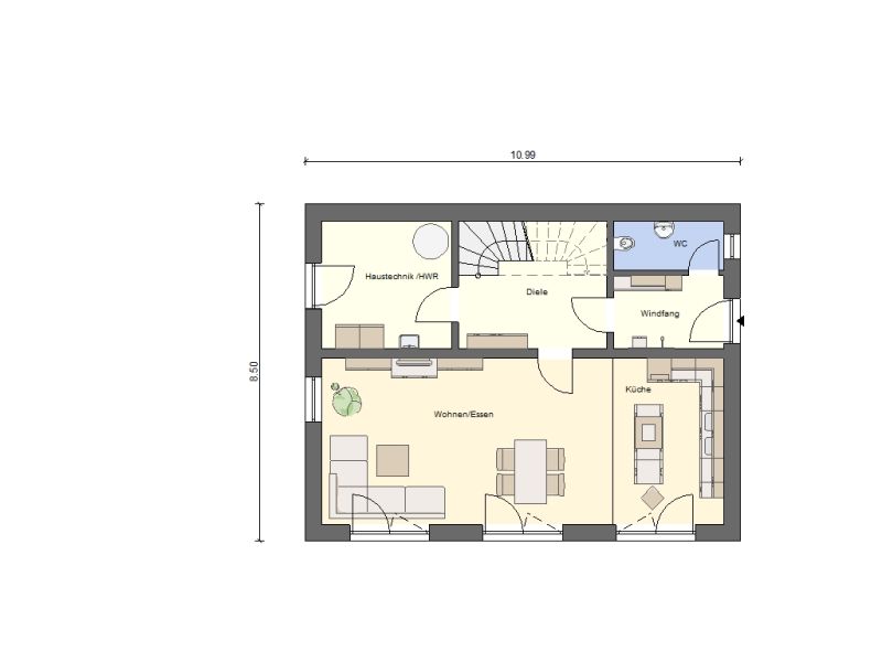
Unsere Typenhäuser

Optimal

Wohnen auf zwei Vollgeschossen, kein Keller
Pultdach mit Stehfalzblech, Dachneigung 8°

Außenmaße: 10,99 + 8,50 m
Wohnfläche: 133 m²


3D Ansicht

Erdgeschoss

Obergeschoss