Schlüsselfertig
Home
Unternehmen
Hochbau
Tiefbau
Schlüsselfertig
Einfamilienhäuser
Mehrfamilienhäuser
Reihen- und Doppelhäuser
SAnieren RENovieren UMbauen
Beratung und Planung
Aktuelle Angebote
Galerie
Kontakt
Datenschutz
Aktuell
Wir stellen ein!!!
Vorarbeiter im Hochbau (m/w/d)
Hochbaufacharbeiter (m/w/d)
Vorarbeiter im Straßen- und Tiefbau (m/w/d)
Straßen- und Tiefbaufacharbeiter (m/w/d)
Baumaschinenführer (m/w/d)
Wir bieten:
über …
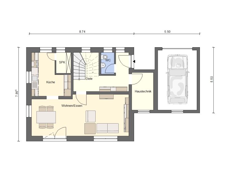
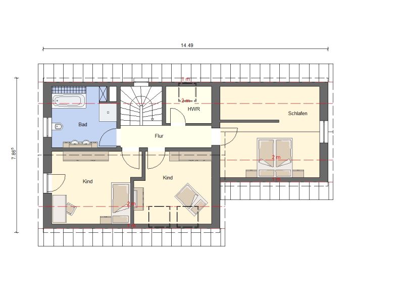
Unsere Typenhäuser
Haus Minimax
Unser Haus Minimax besteht aus:
3D Ansicht
Dachgeschoss
Erdgeschoss